Locale commerciale in vendita in Via di Acilia

Roma - zona Acilia

Rif: IMMO-116822705
Condividi Linkedin Whatsapp Stampa
€ 725.000
Vendita
Locale commerciale
500 Mq
2 Vani
Classe energetica Non indicata
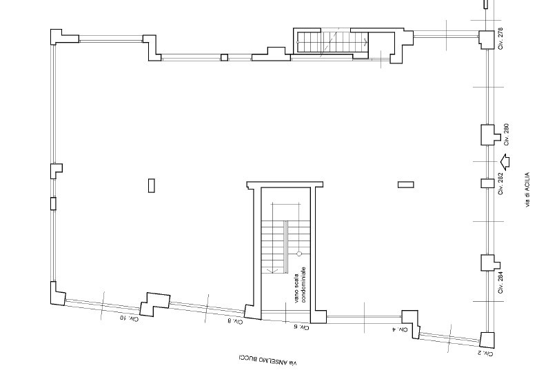
Proponiamo in vendita locale commerciale a reddito di ampia metratura e ottima visibilità in Via di Acilia. L'immobile misura 230 mq al piano terra, 270 mq al piano seminterrato, di cui 70 commerciali e il resto ad uso magazzino. Il locale è dotato di rampa esterna con accesso al magazzino ed un garage di 100 mq circa. Inoltre l'immobile ha 200 mq di spazio esterno ad uso esclusivo. Il locale è affittato a primario conduttore con una rendita annua di Eu.60.000. Il prezzo di vendita richiesto è Eu.725.000.

Dettaglio immobile

Contratto Vendita
Rif IMMO-116822705
Prezzo € 725.000
Provincia Roma
Comune Roma
Zona Acilia
Superficie 500 mq
Vani 2
Classe energetica Non indicata
Condizioni ottime condizioni
Ascensore no

Consistenze

Descrizione Superficie Sup. comm.
Principali
Negozio - piano terra 230 Mq 230 Mqc
Negozio - seminterrato 270 Mq 270 Mqc
Accessorie
Altro - piano terra 200 Mq 200 Mqc
Magazzino - seminterrato 100 Mq 100 Mqc
Totale 800 Mqc

Planimetrie

Richiedi maggiori informazioni

Autorizzazione al trattamento dei dati personali+
Dichiaro di aver letto l'informativa sulla privacy ed accetto le condizioni d'utilizzo del servizio.
Riempi il campo con il codice riportato nell'immagine*
Codice Captcha
FIMAA
Chiamaci Contattaci